Haus U5
Sanierung
Umbau Wohngebäude
Das bestehende Einfamilienhaus aus den 50er Jahren wurde vollumfänglich neu gedacht und an aktuelle Bedürfnisse angepasst. Neben einer kompletten Energetischen Sanierung, wurde das Neudenken des architektonischen Raumes in den Fokus gerückt. Durch einen Deckendurchbruch der Bestandsdecke über Keller öffnet sich der Wohnraum Richtung Garten und vernetzt Innen und Außen auf neu gewonnenen mehreren Ebenen. Die unterschiedlichen Höhenniveaus im Innenraum zonieren ohne zu separieren und bereiten einen ebenerdigen Zugang zur neuen Terrasse.
_
Conversion of residential building
The existing detached house from the 1950s was completely rethought and adapted to current requirements. In addition to a complete energy refurbishment, the facade was on rethinking the architectural space. By breaking through the ceiling above the cellar, the living space opens towards the garden and connects the interior and exterior on several new levels. The different height levels in the interior zone the space without separating it and provide ground-level access to the new terrace.
- Zeitraum: 2023 - 2025
- Ort: Stuttgart
- Bauherrin: privat
- Nutzung: wohnen
- Umfang: alle Leistungsphasen
- .
- Fachplaner:
- Energiekonzept - Energieberatung Strauss
- Statik - Ingenieurbüro Rebstock
Bestandsgebäude: Wohngebäude, geschossweise genutzt – Existing building: Residential building, utilitised by storey
Entfernen Geschossdecke für doppelt hohen Raum – Removal of the ceiling to create double-heights
neu geschaffener Gartenzugang erweitert den Wohnraum ins Freie – Newly created garden access extends the living space outdoors
großflächige Fensteröffnungen für maximalen Tageslichteinfall – Large window openings for maximum daylight penetration
Energetische Sanierung
Wärmepumpe, Fenstertausch (3-fach Isoliververglasung) mit außenliegendem Sonnenschutz als sommerlicher Wärmeschutz, Dämmung des oberen und unteren Raumabschlusses, Außenwanddämmung mit Mineralwolle
heat pump, window replacement (triple insulating glazing) with external sun protection as summer heat insulation, insulation of the upper and lower room closure, external wall insulation
Durch das Entfernen der Decke wird ein großzügiger einladender Wohnbereich geschaffen. Die Sitztreppe fungiert als erweitertes Wohnzimmer als Treffpunkt des Hauses und für spannende Filmabende.
Removing the ceiling creates a spacious, inviting living area. The seating staircase acts as an extended living room as a meeting point for the house and for exciting movie nights.
Grundriss Erdgeschoss: Bestand / Umbau – plan ground floor: existing building / conversion
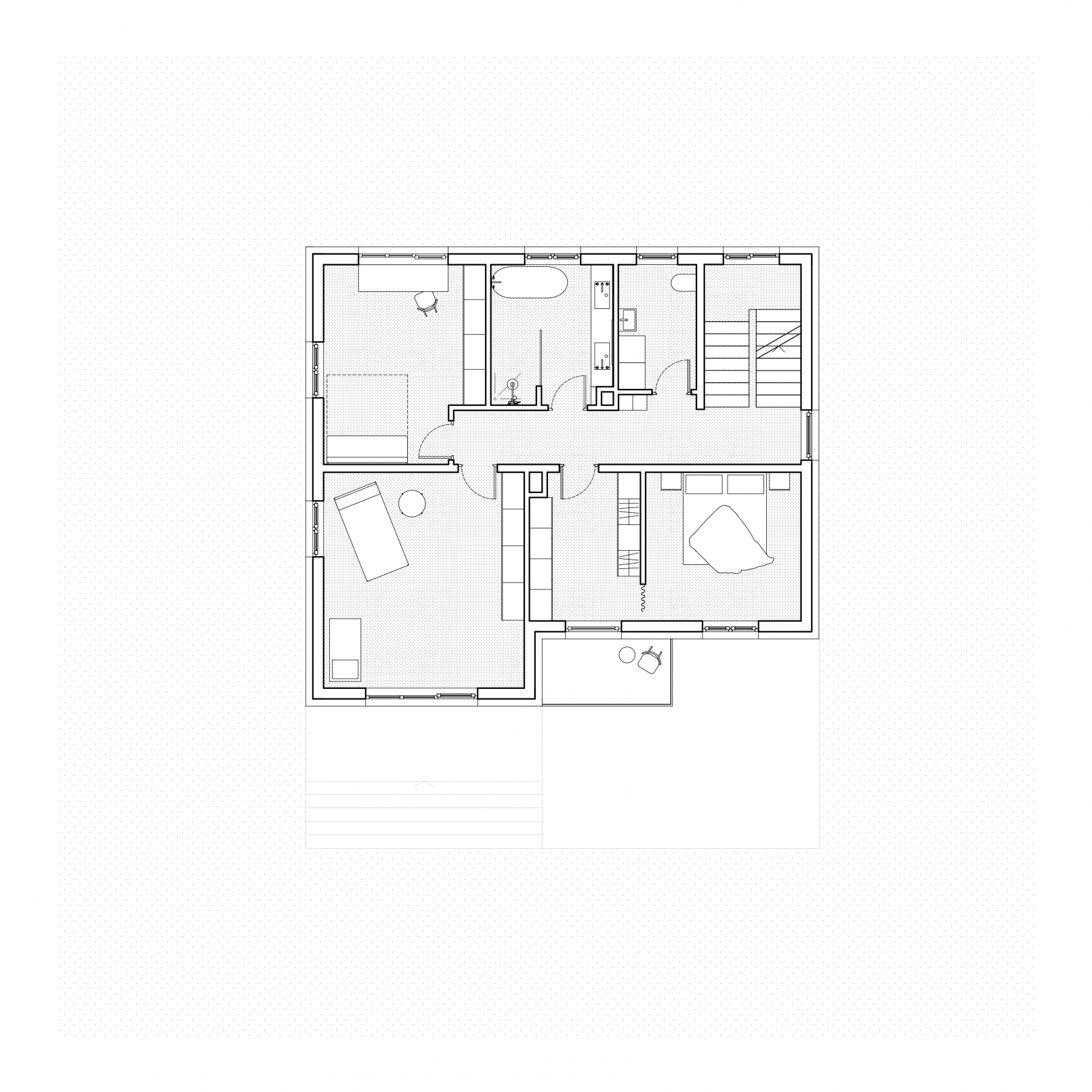
Grundriss 1. Obergeschoss: Bestand / Umbau – plan 1st floor: existing building / conversion
Grundriss Dachgeschoss: Bestand / Umbau – plan attic: existing building / conversion
Grundrisse Umbaustatus: Bestand – schwarz, Neubau – rosa, Abriss – gelb
floor plans conversion status: existing building – black, new intervention – pink, demolition – yellow
Der Ausbau der Sitztreppe ist als zweiter Bauabschnitt geplant. In der Zwischenzeit ergibt sich neben der neuen Treppe eine kuschelige Raumnische des Wohnzimmers.
The extension of the seating staircase is planned as the second construction phase. In the meantime, a cosy living room alcove will be created next to the new staircase.
Schnitt: Bestand / Umbau – section: existing building / conversion
Bathroom
Kitchen
Im 1. Obergeschoss wird die bestehende Küche in das neue Familienbad umgewandelt.
On the 1st floor, the existing kitchen will be converted into the new family bathroom.
Baustellenprozess – process on construction site
Umbau
Bestand
vorher / nachher: Bestandsfoto Juli 2024 – before / after: photo July 2024
Umbauzustand August 2024 – state of conversion August 2024
vorher / nachher: Bestandsfoto Dezember 2024/ Januar 2025 – before / after: photo December 2024 / January 2025































