Haus B36
Sanierung Reihenhaus, Einfamilienhaus
Der Entwurf für das bestehende Reihenendhaus in Ulm nutzt das dreiseitig geräumige Grundstück für eine Wohnraumerweiterung ins Untergeschoss. Nicht genutzter Kellerraum wird durch den Deckendurchbruch zum attraktiven Wohnraum. Der Garten wird durch Landschaftsterrassen auf mehreren Ebenen nutzbar und durch Terrassen erweitert. Die “Grünstufen” dienen als Hochbeete für Gräuter, Blumen und Nutzpflanzen, welche optimal von der neuen offenen Wohnküche aus erreichbar sind. Der neue doppelhohe Luftraum, als Familienmittelpunkt, wird durch Schlafzimmer im Obergeschoss und ein optional erweiterbares Dachgeschoss ergänzt.
_
Refurbishment detached house
The design for the existing end terraced house in Ulm utilises the spacious plot on three sides to extend the living space into the basement. Unused basement space is transformed into attractive living space thanks to the opening in the ceiling. The garden is utilised by landscape terraces on several levels and extended by terraces. The ‘green steps’ serve as raised beds for herbs, flowers and useful plants, which are easily accessible from the new open-plan kitchen/living room. The new double-height air space, as a family centrepiece, is complemented by bedrooms on the upper floor and an optionally expandable attic.
- Zeitraum: 2023-2024
- Ort: Ulm
- Bauherrin: privat
- Nutzung: wohnen
- Umfang: Entwurf
Idee und Maßnahmen – Idea and interventions
Bestandsgebäude – Existing building
Neumodellierung Garten: Kellerzugang – Remodelling garden: basement access
Deckendurchbruch: Neugewinn Wohnräume – Ceiling breakthrough: New living spaces
Natürliche Belichtung: großflächige neue Fenster – Natural lighting: new windows
Energetische Sanierung
Wärmepumpe, Fenstertausch (3-fach Isoliververglasung) mit außenliegendem Sonnenschutz als sommerlicher Wärmeschutz, Dämmung des oberen und unteren Raumabschlusses, Außenwanddämmung mit Mineralwolle
heat pump, window replacement (triple insulating glazing) with external sun protection as summer heat insulation, insulation of the upper and lower room closure, external wall insulation
Section A-A with Adjustments
Section A-A
Schnitt: Bestand – schwarz, Neubau – rosa, Abriss – gelb
section: existing building – black, new intervention – pink, demolition – yellow
UG with Adjustments
UG Floor plan
Grundriss Souterrain: Bestand – schwarz, Neubau – rosa, Abriss – gelb
plan basement: existing building – black, new intervention – pink, demolition – yellow
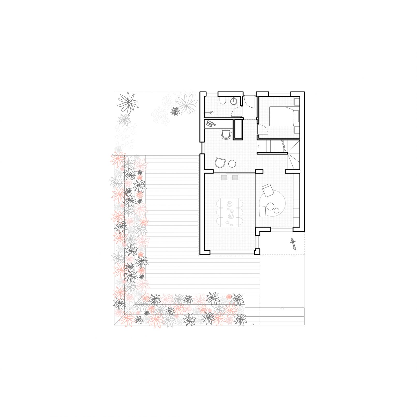
EG with Adjustments
EG Floor plan
Grundriss Erdgeschoss: Bestand – schwarz, Neubau – rosa, Abriss – gelb
plan ground floor: existing building – black, new intervention – pink, demolition – yellow
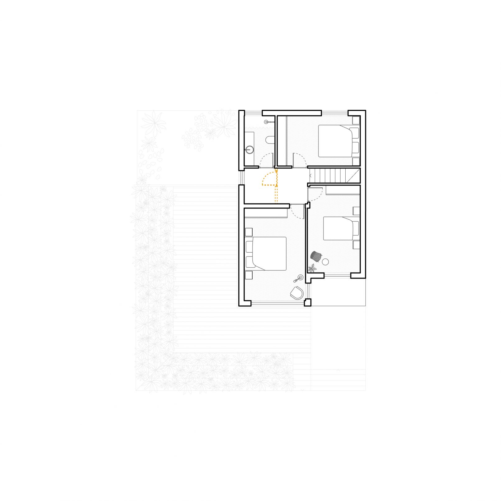
DG with Adjustments
DG Floor plan
Grundriss Obergeschoss: Bestand – schwarz, Neubau – rosa, Abriss – gelb
plan upper floor: existing building – black, new intervention – pink, demolition – yellow







